Với nhu cầu thiết kế một công trình hiện đại, ấn tượng. Giải pháp thiết kế nhà 1 trệt 2 tầng mái BTCT là phù hợp nhất cho gia đình anh Hùng. Ngôi nhà phù hợp với sở thích và cá tính của anh. Thiết kế nguyên khối có thêm phần bê tông rộng thoáng và bố trí cây xanh tạo cảm giác tươi mát.

Anh Hùng đã tìm đến làm việc với Hưng Phát rất lâu trước khi chốt phương án thiết kế nhà 1 trệt 2 tầng 8x15m mái bê tông cốt thép (BTCT) tại quận Thủ Đức.
- Diện tích xây dựng: 8x15m
- Quy mô xây dựng: 1 trệt 2 tầng mái bê tông cốt thép (BTCT)
- Chủ đầu tư: anh Hùng – Quận Thủ Đức
- Đơn vị thiết kế và thi công: Công Ty TNHH Đầu Tư Xây Dựng và Kiến Trúc Hưng Phát
Để xây nên một ngôi nhà trọn vẹn với không gian đơn giản và hiện đại và tiện nghi. Chắc chắn sẽ là khó khăn cho nhà thầu thi công. Chính vì thế, lựa chọn một nhà thầu phải đủ tiêu chuẩn có tâm và có tầm, minh bạch rõ ràng trong công tác quản lí kinh tế cũng như vật liệu. Đảm bảo đúng trình tự thi công cũng như tiến độ chất lượng của công trình.
Phối cảnh 3D mặt tiền cho thiết kế nhà 1 trệt 2 tầng 8x15m
Với lối thiết kế kiến trúc hiện đại, mặt tiền ngôi nhà ốp đá hoa cương màu trắng vân xám ghi rất sang trọng, hợp với phong thủy của anh Hùng.

Thiết kế ấn tượng từ kiến trúc cho đến phối màu, sử dụng một phần hệ lam chống nắng kết hợp. Cửa sổ phòng ngủ sử dụng kính – cửa nhôm xingfa thiết kế liền tạo nét mới lạ cho mặt tiền nhà thu hút người nhìn. Mái nhà tạo góc xéo chứ không làm bằng như những nhà phố khác. Hưng Phát đã sử dụng phối cảnh với 3 gam màu nổi bật phổ biến thường được sử dụng hiện nay.
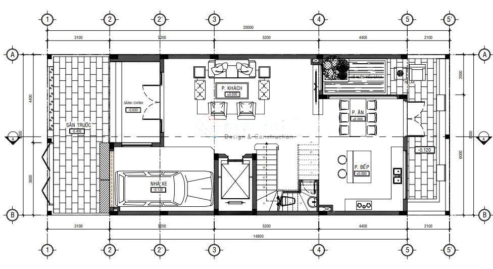
Thiết kế tầng trệt và tầng 1
Tầng trệt của căn nhà được bố trí bao gồm sân trước cùng với gara rộng để ô tô. Tiếp đến là phòng khách. Phòng ăn và phòng bếp được bố trí thêm phần sân sau để không gian được thông thoáng và không bị bám mùi khi nấu nướng.

Tầng 1 với các bố trí ban công – 2 phòng ngủ – 2 nhà vệ sinh và thông tầng để đảm bảo không gian thoáng mát cho các tầng các phòng với nhau.
Thiết kế tầng 2
Với nhu cầu muốn tạo một không gian riêng để giải trí cũng như học tập, tầng 2 được thiết kế có phòng học đàn riêng, diện tích phòng được bố trí rộng rãi, thoáng mát, phù hợp với nhu cầu sử dụng của từng thành viên trong gia đình.
Với lối kiến trúc tinh giản và ấn tượng, nhà 1 trêt 2 tầng 8x15m mái BTCT của anh Hùng luôn có một sự mới lạ và khác biệt. Một không giản sống hoàn hảo, chất lượng, tiện lợi cho sinh hoạt. Tất cả đều được thiết kế và thi công bởi xây dựng Hưng Phát.

Làm việc với Hưng Phát, bạn sẽ được tư vấn kĩ lưỡng về cách chọn thiết kế sao để hợp vơi cảnh quan. Diện tích cũng như sử dụng và bài trí nội thất ra sao. Hưng Phát cũng sẵn sàng chia sẻ khi bạn cần tư vấn kế hoạch xây nhà hay cải tạo mới. Đồng thời chúng tôi sẽ đưa ra phương án giải quyết tiết kiệm chi phí nhất cho ngôi nhà của bạn!
Tại sao lựa chọn Hưng Phát làm đơn vị thi công trọn gói nhà phố tại tp, Hồ Chí Minh?
Để xây nên một công trình chất lượng luôn đòi hỏi nhiều yếu tố từ thiết kế – thi công cùng công tác bảo dưỡng. Tuy nhiên, điều cốt lõi tạo nên giá trị của nó vẫn là phải đem đến chất lượng sống cho gia chủ. Đó chính là tôn chỉ ” Xây Dựng Hưng thịnh & Phát triển” mà chúng tôi hướng tới.
Hưng Phát – với đội ngũ thiết kế, thi công giàu năng lực, tận tâm và đầy sức sáng tạo. Tập thể Hưng Phát không quản ngại nắng mưa để hoàn thiện đúng tiến độ nhưng vẫn đảm bảo yếu tố chất lượng, Mức giá ưu đãi, chi phí minh bạch trong xây dựng là điều cần thiết khi tiến hành một dự án.
- Công ty TNHH Đầu Tư Kiến Trúc Xây Dựng Hưng Phát
- Địa chỉ: 332/13A Độc Lập, P. Tân Quý, Q.Tân Phú, TP.HCM
- VPĐD: 149 Tây Hòa, p.Phước Long A, Q9, tp.HCM
- Hotline : 0911.80.7879
- Email : xdhungphat88@gmail.com
- Web: Xaydunghungphat.com
