Nhiều thắc mắc xoay quanh về chi phí xây nhà 3 tầng tại tp. HCM là bao nhiêu? Bởi việc dự tính giá thành thi công sẽ giúp bạn có kế hoạch rõ ràng cho việc chuẩn bị trước kinh phí xây nhà. Việc xây nhà luôn là việc lâu dài, đòi hỏi sự chuẩn bị kĩ lưỡng cũng như tìm hiểu rõ ràng để không phát sinh chi phí không đáng có.
Chính vì thế, để đảm bảo và an tâm khi xây dựng, bạn nên lựa chọn một nhà thầu thi công uy tín tại tp.HCM. Việc này giúp bạn hạn chế thấp nhất những rủi ro không đáng có, cũng như có được một công trình ưng ý mà bạn tâm huyết bỏ ra.
Các yếu tố liên quan đến chi phí xây dựng nhà 3 tầng hiện nay
Vị trí xây dựng là một trong những yếu tố tác động đến chi phí lớn nhất hiên nay. Để có một dự toán chi phí xây nhà 3 tầng hiện đại cụ thể và chính xác nhất, CĐT cần có sự tính toán kĩ lưỡng về vị trí mặt bằng mình định xây nhà trước khi thi công.
Diện tích xây dựng cũng góp phần tác động đến chi phí xây dựng nhà 3 tầng tại Sài Gòn. Vì việc thi công từ chủ thầu và kinh phí đầu tư của CĐT là 2 yếu tố liên quan mật thiết với nhau.
Đơn giá xây dựng nhà 3 tầng (VNĐ/m2)
- Đơn giá nhân công xây thô từ 3.200.000đ/m2 – 3.400.000đ/m2
- Đơn giá hoàn thiện “chìa khóa trao tay” bao gồm cả nhân công vật tư (chủ thầu lo trọn gói) 5.300.000đ/m2.
- Nếu chủ đầu tư yêu cầu đổ mái thái hoặc mái chéo mái bằng, thì tính diện tích riêng cho từng kiểu mái theo bản vẽ thiết kế thi công
Lưu ý: Đơn giá chính xác cho chi phí xây nhà 3 tầng hiện đại phụ thuộc vào chất liệu vật tư khách hàng lựa chọn, vị trí xây dựng, bản vẽ thiết kế, diện tích xây dựng và sẽ được chủ thầu thi công báo giá cụ thể khi tư vấn ký hợp đồng.
Chi phí xây dựng nhà phố 3 tầng hiện nay tại Sài Gòn
Tổng chi phí xây nhà 3 tầng hiện đại = diện tích x (số lượng tầng + phần mái, móng) x đơn giá hoàn thiện.
Tổng chi phí xây nhà 3 tầng hiện đại trọn gói “chìa khóa trao tay” là 1,1 tỷ. Chi phí vừa đủ với tài chính không quá lớn cho ngôi nhà 4 thành viên thuận tiện sinh hoạt với không gian hiện đại.

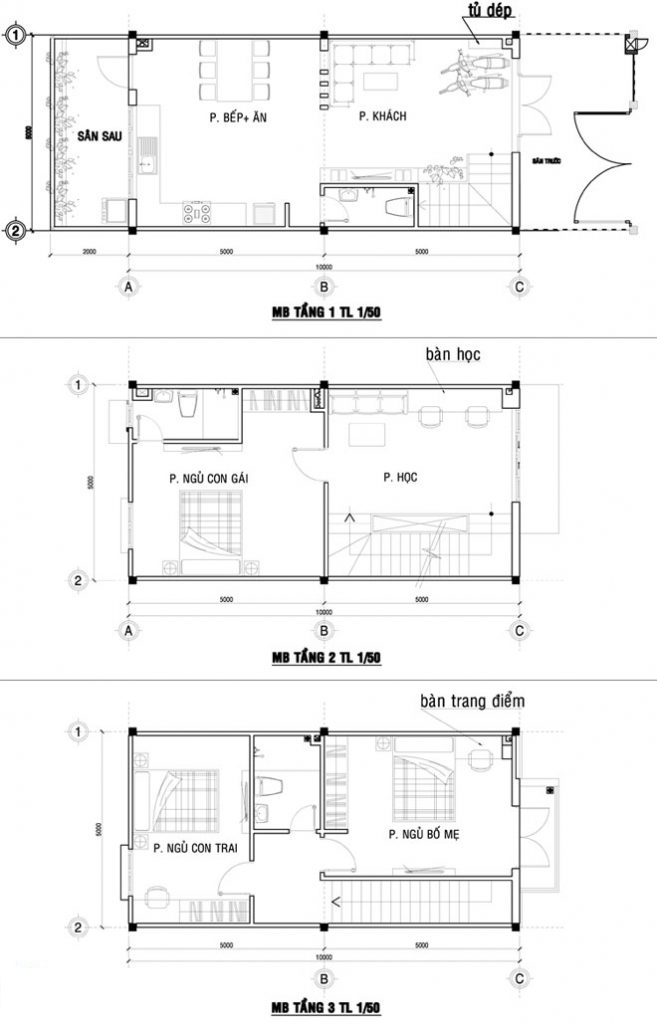
- Mặt bằng bố trí tầng 1: Sân trước, sân sau, phòng khách, phòng bếp + phòng ăn, nhà vệ sinh.
- Mặt bằng bố trí tầng 2: Phòng ngủ con gái, phòng học, ban công,nhà vệ sinh.
- Mặt bằng bố trí tầng 3: Phòng ngủ con trai, phòng ngủ bố mẹ, nhà vệ sinh, ban công.
Các tầng được bố trí với không gian đủ cho 4 thành viên gia đình sinh hoạt thoải mái với các đường nét thiết kế tỉ mỉ hiện đại làm sang trọng cho ngôi nhà.
Không gian nhà 3 tầng hiện đại
Phòng khách được bố trí rộng rãi, hài hòa với cửa chính. Bên cạnh đó, gầm cầu thang sẽ được tận dụng làm kệ chứa tủ sách và các vật dụng khác. Nội thất sử dụng màu sáng, cầu thang lên từng bậc màu tối tay vin tôn lên vẻ sang trọng của ngôi nhà. Từ đó vừa đem lại nét thẩm mỹ cũng như sự tinh tế cao.

Phòng khách thiết kế liền kề phòng bếp, dùng vách ngăn hệ lam tách biệt hai không gian với nhau. Mỗi không gian sẽ phù hợp với việc sinh hoạt của từng thành viên trong gia đình.

Khu vực bếp liền kề với phòng ăn nhằm tạo điều kiện thuận lợi cho việc nấu nướng, thêm phần ấm cúng. Phía phòng bếp được trang bị thêm cánh cửa đi ra khu sân sau. Phía sân sau cũng được bố trí thêm cây xanh cho thông thoáng và tươi mát.

Bộ bàn ăn được thiết kế với màu nâu gỗ nhẹ nhàng, sang trọng và đẹp mắt, không chiếm nhiều diện tích. Tủ bếp kịch trần khá đơn giản dùng để lưu trữ các vật dụng nhà bếp. Tủ bếp dưới sử dụng Arcylic bóng gương tạo thêm nét đẹp sang và hiện đại.

Phòng ngủ của vợ chồng luôn được tạo cảm giác fresh nhờ màu sắc tươi tắn và ấm áp với chiếc giường màu trắng kem và ánh kim từ gra giường bắt mắt. Các vật dụng nội thất đi kèm được thiết kế tối giản, khéo léo và hòa hợp với tông màu sáng chủ đạo của căn phòng.

Phòng ngủ bé gái được sử dụng bằng các gam màu dễ thương, thiết kế kệ dài cho các chậu cây xanh trong phòng, tạo cảm giác tinh tế, mới mẻ và bắt mắt.

Phòng ngủ bé trai được thiết kế theo lối cá tính,đầy đủ các nội thất vật dụng để thuận tiện sinh hoạt với không gian riêng. Có bố trí 1 góc học tập riêng để thuận tiện cho việc học hành.

Nhà vệ sinh được đặt trong các phòng ngủ thiết kế đơn giản bố trí các vật dụng nhỏ gọn cho mọi người trong gia đình có không gian thuận tiện cho việc sinh hoạt cá nhân. Chậu lavabo rửa mặt, vòi sen đều là các thiết bị cao cấp hiện đại.

Với chi phí xây nhà 3 tầng hiện đại chỉ dao động 1,1 tỷ chủ đầu tư đã sở hữu được không gian sống thuận tiện thoải mái và đầy đủ các thiết bị vật dụng. Hãy nhấc máy ngay đến Hưng Phát nếu bạn đang cần tư vấn, báo giá hoặc hỗ trợ các vấn đề liên quan!
- Công ty TNHH Đầu Tư Kiến Trúc Xây Dựng Hưng Phát
- Địa chỉ: 332/13A Độc Lập, P. Tân Quý, Q.Tân Phú, TP.HCM
- VPĐD: 149 Tây Hòa, p.Phước Long A, Q9, tp.HCM
- Hotline : 0911.80.7879
- Email : xdhungphat88@gmail.com
- Web: Xaydunghungphat.com

